Office To Let, Congleton
3 photos
£195 / month
£2,340 pa
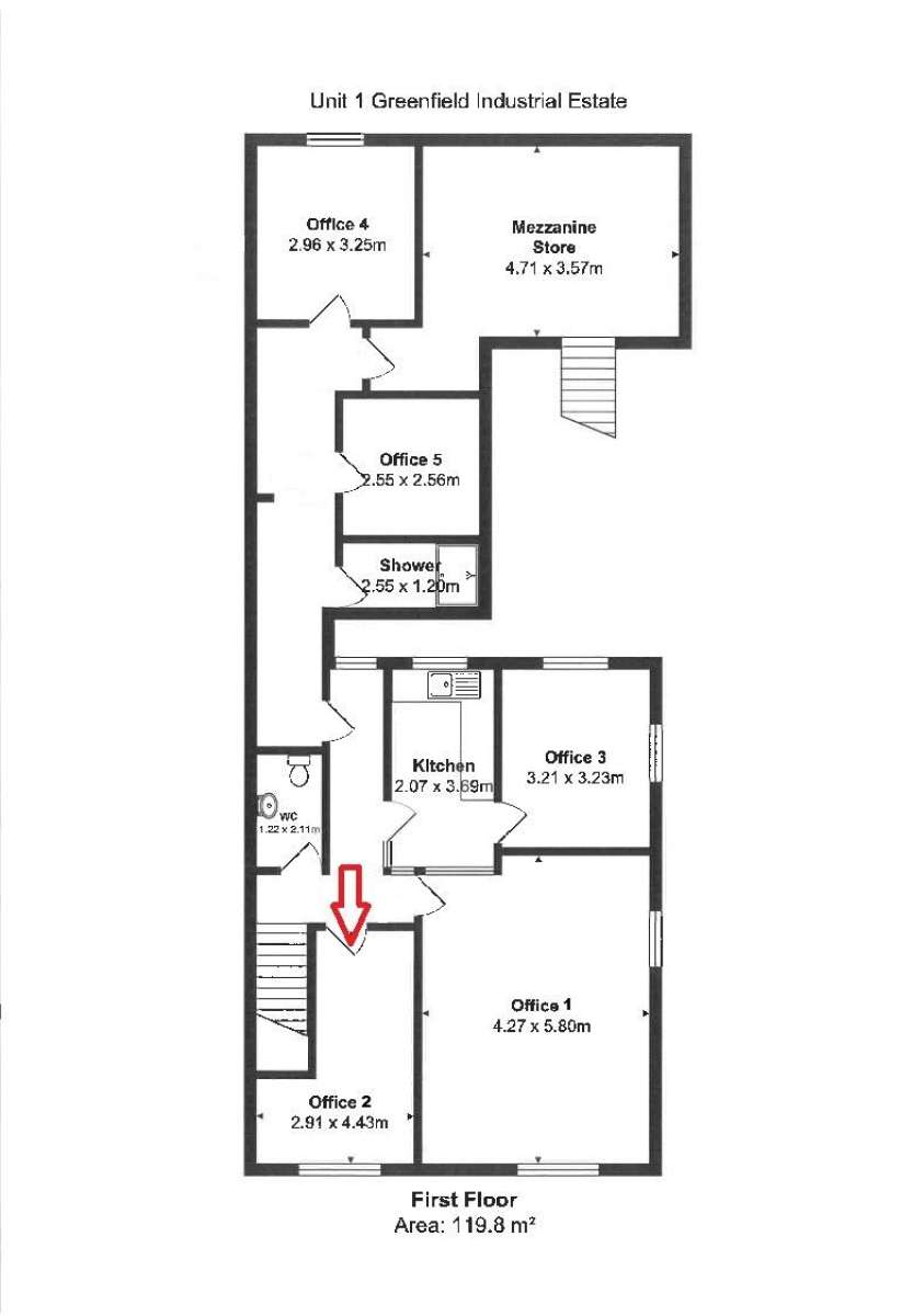
Greenfield Farm Industrial Estate, Congleton, CW12 4TR
Type
Office
Status
Available
Size
0 sq ft
Key Features
- LOCK UP OFFICE SUITE
- 118.50 SQ FT (11.01 SQ M)
- ALL INCLUSIVE RENT
- 24 HOUR ACCESS
Property Details
modern, All-inclusive Office Suite – Just £195 + Vat Per Month
A Fantastic Opportunity To Secure A Smart, Self-contained Office Within The Ever-popular greenfield Industrial & Office Estate, Perfectly Positioned On The Edge Of Congleton With Excellent Access To M6 Junctions 17, 18 And 19.
This 118.50 Sq Ft (11.01 Sq M) First-floor Suite Offers A Bright, Secure Workspace With 24-hour Access And A Simple all-inclusive Rent Covering:
Wi-fi
Heating
Power
Lighting
Use Of High-quality Communal Kitchen And W.c. Facilities
Accessed Via A Communal Entrance And Staircase, The Suite Benefits From Its Own lockable Door, Making It Ideal For A Small Business, Start-up, Or Anyone Seeking A Private, Professional Base Without The Overheads. Also, Perfectly Suited For Therapists, Chiropractors, And Beauty Treatment Professionals Seeking A High-quality Space.
A Modern, Affordable Workspace In A Thriving Business Location — Ready To Move Into.
A Fantastic Opportunity To Secure A Smart, Self-contained Office Within The Ever-popular greenfield Industrial & Office Estate, Perfectly Positioned On The Edge Of Congleton With Excellent Access To M6 Junctions 17, 18 And 19.
This 118.50 Sq Ft (11.01 Sq M) First-floor Suite Offers A Bright, Secure Workspace With 24-hour Access And A Simple all-inclusive Rent Covering:
Wi-fi
Heating
Power
Lighting
Use Of High-quality Communal Kitchen And W.c. Facilities
Accessed Via A Communal Entrance And Staircase, The Suite Benefits From Its Own lockable Door, Making It Ideal For A Small Business, Start-up, Or Anyone Seeking A Private, Professional Base Without The Overheads. Also, Perfectly Suited For Therapists, Chiropractors, And Beauty Treatment Professionals Seeking A High-quality Space.
A Modern, Affordable Workspace In A Thriving Business Location — Ready To Move Into.
Location
Advertisement
Timothy A Brown Estate Agents
View all properties
Make an Enquiry
Timothy A Brown Estate Agents