Office To Let, Wantage

Office in Wantage
Office in Wantage

Property ID: 151252

POA

Brooklands, Wantage, OX12 8DF

Type Office
Status Available
Size 0 sq ft

Key Features

  • Spacious and versatile business premises
  • Front part of a large detached, commercial building
  • Off road parking
  • Believed to date from the Victorian era and set in the town’s Conservation Area
  • Newbury Street, Wantage
  • Use Class E Commercial, Business and Service*. But also has the potential to accommodate other uses – subject to planning consent

Description

General description

The front x 2 storey part of a large, detached commercial building with off-road parking. Believed to date from the Victorian era and set in the town‘s Conservation Area, the building is set back from Newbury Street (A338) just south of the town centre shopping area and sits in approximately 0.37 acre of walled grounds.    

Permitted use

The historic use of the building is as offices, which now fall under Use Class E Commercial, Business and Service*. But also has the potential to accommodate other uses – subject to planning consent – such as a Hotel/guest house (Use Class C1), a Care/nursing home (C2) or a School (F1(a)). *Some uses permitted by Use Class E may require the Landlord‘s consent, please check with us before viewing).

Location

The historic market town of Wantage, along with nearby Grove, is located in affluent southern Oxfordshire approximately 15 miles southwest of Oxford at the junction of the A338 with the A417 and approx. 6 miles west of the A34 &ldquoMilton interchange&rdquo near Didcot. Both are growing rapidly in population terms, set to continue for several years yet.

The building is on the west side of Newbury Street (A338) about 60 yards south of the traffic light crossroads of Portway (B4507 west) and Ormond Road (east) with predominantly residential neighbours. Post code OX12 8DF

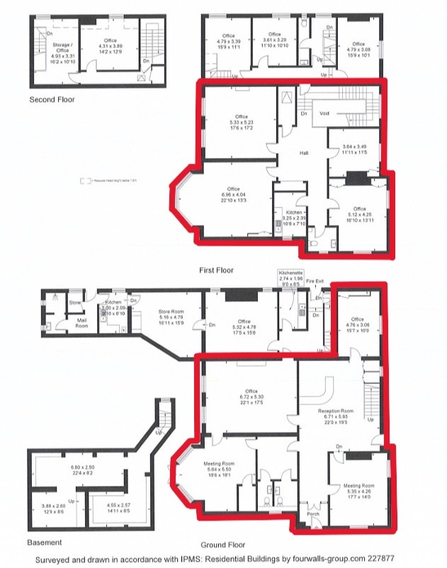
The accommodation (See floor plan for dimensions)

On the ground floor – An entrance vestibule leads to a large hall/reception area with 4 offices  and 2 WC‘s off. A staircase then leads from the reception area to the&hellip

First floor – With 4 offices, a further WC and a kitchen/tea station.

Outside – There are walled, part lawned & yew hedged grounds to 3 sides (including 3 x TPO‘d coniferous trees on the south boundary). The car park comfortably provides space for several vehicles via a gated driveway. NB. 3 of the parking spaces are allocated to the rear part of the building).   

Price guide and terms

Rental only, under a full repairing and insuring lease of negotiable term for which offers in the region £30,000pa/£2,500pcm exclusive of any other tenant‘s outgoings are invited. An initial period of reduced rent can be discussed, depending on the length of term before a tenant‘s break option can be exercised. A commercial tenancy application and references are required, at a cost of £120.00 incl. VAT.     

VAT

We understand that VAT is not payable in addition.

Business Rates

Rateable Value – (April 2026) £to be assessed. For general information, the RV of the whole building (April 2026) is £42,750

Services

Mains water, gas, electricity and drainage are connected to the building. Heating is presently partially from a gas fired boiler located in the rear part of the building and partially by electric panel heaters. Telephone/broadband services have previously been installed but the incoming tenant must arrange their own connecions.

EPC rating (whole building)

E/109. Full details are available on request.

Availability

Immediately on completion of formalities subject to any necessary alterations to the building.    

Local planning and rating authority

Vale of White Horse District Council, Abbey House, Abbey Close, Abingdon OX14 3SE

Tel 01235 422422   

Viewing

By prior appointment with Green & Co Commercial and Development Agency, during usual business hours Monday to Friday. only Tel. 01235 763561 (ref. RH) or email robin.heath@greenand.co.uk

Agent‘s notes

1. The rear, 3 storey plus basement part of the building is also available at this time, rental offers for the whole of the building are invited.

2. The freehold interest in the building is not for sale.

Green & Co Ltd
Green & Co Ltd View all properties

Property ID: 151252

Office To Let, Wantage
POA

Brooklands, Wantage, OX12 8DF

Office · Available · 0 sq ft

Send Enquiry
Green & Co Ltd
Green & Co Ltd View all properties

Make an Enquiry

Boxpod will only use your details to send an enquiry to the advertiser and prompt a response. By clicking Send Enquiry, you agree to Boxpod's Privacy Policy.

Make an Enquiry

Green & Co Ltd
Green & Co Ltd

Boxpod will only use your details to send an enquiry to the advertiser and prompt a response. By clicking Send Enquiry, you agree to Boxpod's Privacy Policy.

Call