Office To Let, Swan Valley Way

Office in Swan Valley Way
Office in Swan Valley Way
Office in Swan Valley Way
Office in Swan Valley Way

Property ID: 150135

£9,209 / month
£110,507 pa

Primus House,Cygnet Drive, Swan Valley Way, NN4 9BS

Type Office
Status Available
Size 5,667 sq ft

Key Features

  • Modern self contained building constructed in 2007
  • Prominent position fronting Swan Valley Way
  • Kitchenettes, meeting rooms and board room
  • Air conditioning and raised access floors
  • Suspended ceilings with inset LG7 and LED lighting
  • 23 allocated parking spaces

Description

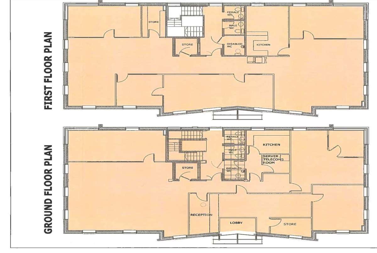
Primus House Is An Attractive Self-contained Office Building Constructed In 2007 With Excellent Allocated Car Parking. The Office Space Is Split Over Two Floors Providing A Mix Of Open Plan Space, Individual Offices And Meeting Rooms Together With Wcs And A Kitchenette On Each Floor. The Property Is Ideally Suited To Sole Occupancy But Could Also Allow Multiple Occupation On A Floor By Floor Basis.
LSH-Milton Keynes
LSH-Milton Keynes View all properties

Property ID: 150135

Office To Let, Swan Valley Way
£9,209 / month
£110,507 pa

Primus House,Cygnet Drive, Swan Valley Way, NN4 9BS

Office · Available · 5,667 sq ft

Send Enquiry
LSH-Milton Keynes
LSH-Milton Keynes View all properties

Make an Enquiry

Boxpod will only use your details to send an enquiry to the advertiser and prompt a response. By clicking Send Enquiry, you agree to Boxpod's Privacy Policy.

Make an Enquiry

LSH-Milton Keynes
LSH-Milton Keynes

Boxpod will only use your details to send an enquiry to the advertiser and prompt a response. By clicking Send Enquiry, you agree to Boxpod's Privacy Policy.

Call