 
                                 
                                 
                                 
                                 
                                 
                                 
                                 
                                Retail/Shop To Let Boston
PROPERTY ID: 147338
PROPERTY TYPE
Retail/Shop
STATUS
Available
SIZE
1,092-1,093 sq.ft
Key Features
Property Details
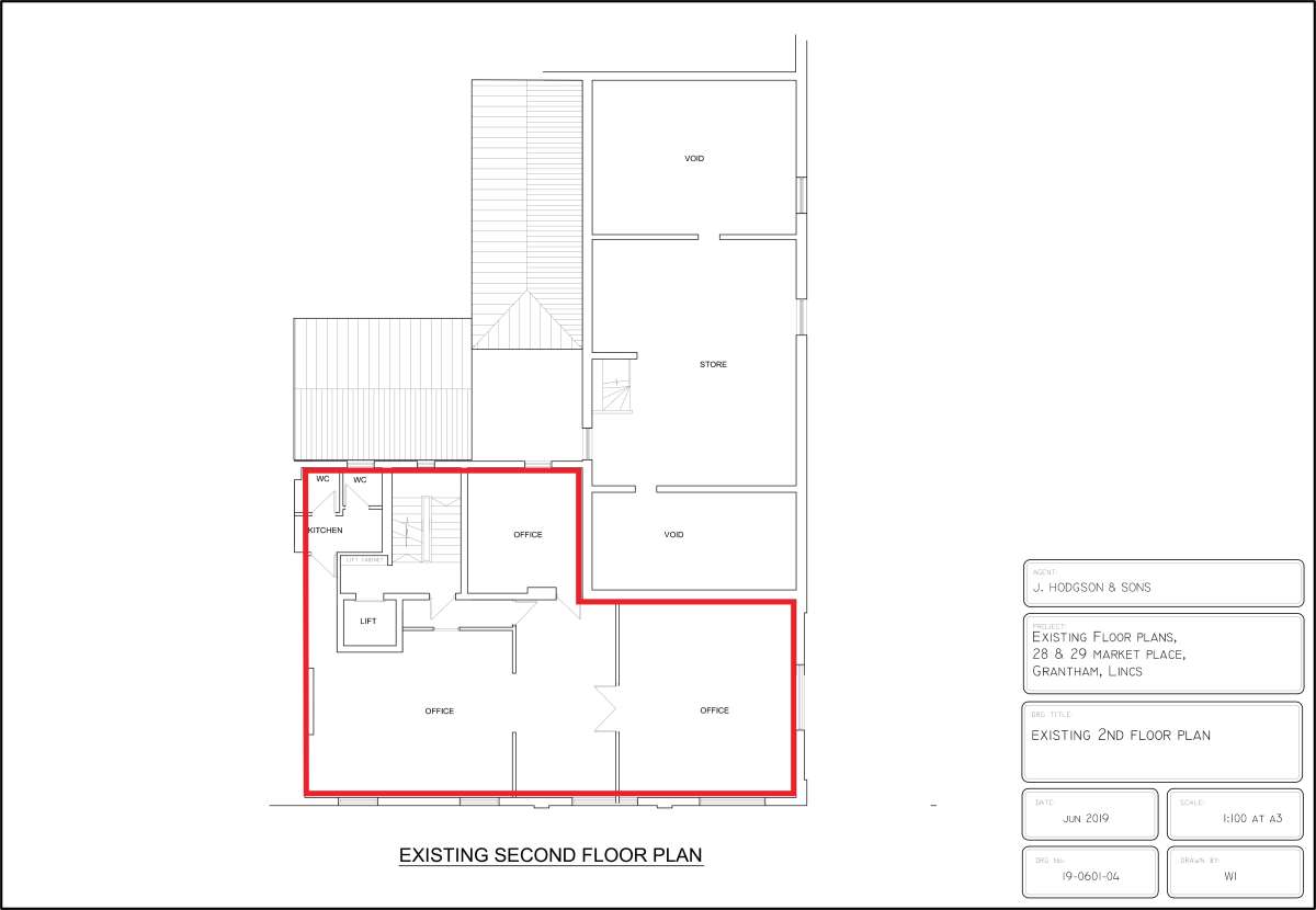
The available Office Suite is located on the 2nd Floor within this 4 storey structure which benefits from a Personnel Lift serving all floors. The Office Suite has carpeted floor coverings and gas fired central heating via radiators and benefits from its own Kitchen as well as Ladies and Gentleman's WC facilities.
Public car parking is available on Watergate and privately-owned contract parking may be available in close proximity by separate negotiation.
Town Centre 2nd Floor Office Suite In Character Building With Lift.
Net Internal Area Approx. 1,053 Sq. Ft (101.5 Sq. M)
Gas Central Heating
Premises Available By Way Of New Effective Fri Lease (via Service Charge)
Second Floor Office Suite 
28 Market Place, Grantham, Ng31 6lr
£7,500 P.a.x. Leasehold| 101.5 Sq M (1,053 Sq Ft)
Second Floor Office Suite 
28 Market Place, Grantham, Ng31 6lr
£7,500 P.a.x. Leasehold| 101.5 Sq M (1,053 Sq Ft)
Detailed Description
The Available Office Suite Is Located On The 2nd Floor Within This 4 Storey Structure Which Benefits From A Personnel Lift Serving All Floors. The Office Suite Has Carpeted Floor Coverings And Gas Fired Central Heating Via Radiators And Benefits From Its Own Kitchen As Well As Ladies And Gentleman's Wc Facilities.
Public Car Parking Is Available On Watergate And Privately-owned Contract Parking May Be Available In Close Proximity By Separate Negotiation.
Location
Grantham Is An Established Market Town In South Lincolnshire Having A Population Of Approximately 38,000 People And With A Large Catchment Area. The Town Is Situated Approximately 23 Miles East Of Nottingham And 25 Miles South Of Lincoln And The A1 Runs Immediately To The West Of The Town Providing Excellent Road Communications With Grantham Also Benefiting From A Mainline Rail Connection To London Kings Cross With The Journey Time Of Approximately 75 Minutes.
28 Market Place Is A Prominent, 4 Storey Town Centre Building On The Corner Of Market Place And Westgate.
Minimum Term Of 3 Years

 
                    




































































































