1/4
Retail/Shop

Retail/Shop To Let Derby

PROPERTY ID: 147148

PROPERTY TYPE

Retail/Shop

STATUS

Available

SIZE

1,544 sq.ft

Key Features

Former Co-Op food store
Highly prominent corner pitch
Next to Birds and Domino's Pizza
Interest invited STP for proposed subdivision
Suitable for a variety of high street uses
On a new lease

Property Details

Description

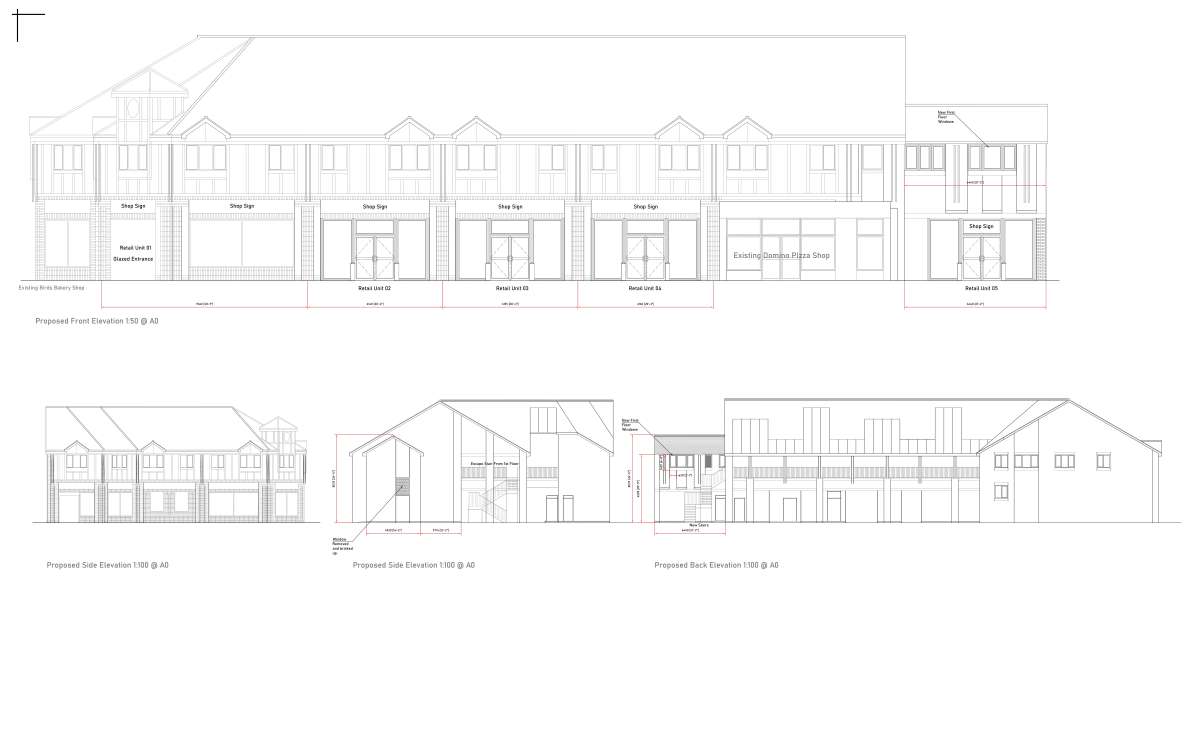
Former Co-op Convenience Store. Prime Position In Neighbourhood Centre Next To Birds Bakery And Domino's.

Prominent Corner Unit Can Be Let As A Whole Or May Split. Planning Currently Submitted To Sub Divide Into 5 New Retail Units As Follows:

Unit 2a - 114.8 Sq M (1,237 Sq Ft) - Under Offer
Unit 2b - 143.4 Sq M (1,544 Sq Ft) - £34,000 P.a.
Unit 2c - 85.6 Sq M (921 Sq Ft) Under Offer

Expressions Of Interest For The Units Invited On A Stp Basis. To Be Constructed To A Shell Ready For Occupier Fit Out.

Some Staff Parking To The Rear With Loading. Additional Onsite Pay And Display Or Free Street Parking

Viewing

Please Check Our Data Room For A Virtual Tour. Physical Viewings With Proceedable Parties Can Be Arranged On Request By Contacting Our Commercial Property Agents. Omeeto Do Not Take Any Responsibility For Any Loss Or Injury Caused Whilst Carrying Out A Site Visit.

Vat

All Figures Are Quoted Exclusive Of Vat, We Are Advised The Property Is Registered For Vat Which Is Applicable At The Prevailing Rate.

Epc

The Existing Building Is Currently Assessed As B(47). A New Epc Shall Be Commissioned For Completion On The Proposed Units.

About the Agent

Retail Unit

£34,000 / pa
£2,833 / month

2b Swarkestone Road, Derby, DE73 6UF
Retail/Shop - Available
1,544 sq ft
143 sqm
Show phone number

Enquiry Form

Boxpod will only use your details to send an enquiry to the advertiser and prompt a response. By clicking the Send Enquiry button, you agree to Boxpod's Privacy Policy Please wait for a response. It may take several seconds.

Similar to this property

To Let
POA

Derby, DE73 6UF

Retail/Shop

To Let
£1667 / month

Derby, DE73 6TB

Retail/Shop

To Let

Derby, DE24 0JH

Retail/Shop

To Let
POA

Derby, DE24 0JH

Retail/Shop

To Let
£750 / month

Derby, DE24 8WJ

Retail/Shop

To Let
£1625 / month

Melbourne, DE73 8FE

Retail/Shop

To Buy
£1750000 Freehold

Derby, DE73 8BR

Retail/Shop

To Buy
£800000 Freehold

Derby, DE1 2RD

Retail/Shop

To Let
£3333 / month

Derby, DE1 2JY

Retail/Shop

To Let
POA

Derby, DE1 2LD

Retail/Shop

To Let
POA

Derby, DE1 2PY

Retail/Shop

To Buy
£140000 Freehold

Derby, DE21 7FH

Retail/Shop

To Buy
£600000 Freehold

Stourbridge, DE21 6EN

Retail/Shop

To Let
£833 / month

Derby, DE1 2NR

Retail/Shop

To Let
£1835 / month

Derby, DE1 2NR

Retail/Shop

To Let
£896 / month

Derby, DE1 2NR

Retail/Shop

To Let
POA

Derby, DE1 2NR

Retail/Shop

To Let
£1125 / month

Derby, DE1 2NR

Retail/Shop

To Buy
POA

Derby, DE21 7JP

Retail/Shop

To Let
£83333 / month

Derby, DE1 2AU

Retail/Shop

To Let
£1333 / month

Derby, DE1 2DS

Retail/Shop

To Let
POA

Derby, DE1 2DP

Retail/Shop

To Let
£5000 / month

Derby, DE1 1ES

Retail/Shop

To Buy
POA

Derby, DE1 2DG

Retail/Shop

To Let
£2292 / month

Derby, DE1 3QE

Retail/Shop

To Let
POA

Derby, DE1 1BE

Retail/Shop

To Let
£2667 / month

Derby, DE1 3QJ

Retail/Shop

To Let
£1500 / month

Derby, DE1 1BQ

Retail/Shop

To Let
£1792 / month

Derby, DE1 3NQ

Retail/Shop

To Let
£750 / month

Derby, DE1 1LH

Retail/Shop

To Let
£3000 / month

Derby, DE1 3GA

Retail/Shop

To Let
£1167 / month

Derby, DE1 3FJ

Retail/Shop

To Let
Starting From £3750 / month

Derby, DE1 3FJ

Retail/Shop

To Let
£833 / month

Derby, DE1 3FJ

Retail/Shop

To Let
£3000 / month

Derby, DE1 3FJ

Retail/Shop

To Let
£1250 / month

Derby, DE1 1EX

Retail/Shop

To Let
POA

Derby, DE1 1BU

Retail/Shop

To Let
£650 / month

Derby, DE1 1EX

Retail/Shop

To Let
POA

Derby, DE1 3DE

Retail/Shop

To Buy
£1100000 Freehold

Derby, DE1 1BX

Retail/Shop

To Buy
£350000 Freehold

Derby, DE21 6EZ

Retail/Shop

To Let
£1833 / month

Derby, DE22 3FQ

Retail/Shop

To Let
£1083 / month

Derby, DE1 3EG

Retail/Shop

To Let

Derby, DE22 3AQ

Retail/Shop

To Let
£2917 / month

Derby, DE22 2QN

Retail/Shop

To Let
£1542 / month

Nottingham, NG10 1JL

Retail/Shop

To Let
POA

Ilkeston, DE7 4JN

Retail/Shop

To Let
POA

Ilkeston, DE7 4JN

Retail/Shop

To Buy
£245000 Freehold

Ilkeston, DE7 6FS

Retail/Shop

To Let
£833 / month

Ilkeston, DE7 4NU

Retail/Shop

To Let
£1250 / month

Swadlincote, DE11 8JA

Retail/Shop

To Let
£1500 / month

Swadlincote, DE11 9AA

Retail/Shop

To Buy
£375000 Freehold

Ashby de la Zouch, LE65 1AH

Retail/Shop

To Let
£600 / month

Ashby de la Zouch, LE65 1HA

Retail/Shop

To Let
£66667 / month

Ashby de la Zouch, LE65 1AF

Retail/Shop

To Let
£2167 / month

Ashby de la Zouch, LE65 2FQ

Retail/Shop

To Let
POA

Derby, DE7 4AU

Retail/Shop

To Let
£18750 / month

Nottingham, NG9 6DQ

Retail/Shop

To Let
£1250 / month

Ilkeston, DE7 8FD

Retail/Shop

To Let
£833 / month

Ilkeston, DE7 8FD

Retail/Shop

To Let
£496 / month

Ilkeston, DE7 8AJ

Retail/Shop

To Let
£1000 / month

Burton On Trent, DE13 0SW

Retail/Shop

To Buy
£1800000 Freehold

Loughborough, LE12 9QF

Retail/Shop

To Let
£792 / month

Ilkeston, DE7 8AP

Retail/Shop

To Let
£292 / month

Burton On Trent, DE14 1JS

Retail/Shop

To Let
£1375 / month

Burton On Trent, DE14 1JS

Retail/Shop

To Buy
£250000 Freehold

Burton On Trent, DE15 9RW

Retail/Shop

To Let
POA

Burton On Trent, DE14 1BU

Retail/Shop

To Let
£833 / month

Burton On Trent, DE14 1AN

Retail/Shop

To Let
£2496 / month

Burton on Trent, DE14 1AN

Retail/Shop

To Let
£2917 / month

Burton On Trent, DE14 1NA

Retail/Shop

To Let
£1000 / month

Burton On Trent, DE14 1AX

Retail/Shop

To Let
£496 / month

Burton On Trent, DE14 1AX

Retail/Shop

To Let

Loughborough, LE12 9NR

Retail/Shop

To Let
£583 / month

Burton On Trent, DE14 2NG

Retail/Shop

To Let

Burton On Trent, DE14 2NG

Retail/Shop

To Let

Burton On Trent, DE14 2LD

Retail/Shop

To Let
£2083 / month

Belper, DE56 0RR

Retail/Shop

To Buy
£120000 Freehold

Derby, DE15 9LD

Retail/Shop

To Let
POA

Ilkeston, DE7 5LF

Retail/Shop

To Let
POA

Burton On Trent, DE14 2AP

Retail/Shop

To Let
£1000 / month

Beeston, NG9 2NP

Retail/Shop

To Let
£1000 / month

Coalville, LE67 3PD

Retail/Shop

To Buy
£450000 Freehold

Burton On Trent, DE13 9LS

Retail/Shop

To Buy
£200000 Freehold

Belper, DE56 1PL

Retail/Shop

To Buy
£145000 Freehold

Belper, DE56 1PS

Retail/Shop

To Let
Starting From £458 / month

Belper, DE56 1PS

Retail/Shop

To Let
£2333 / month

Belper, DE56 1PX

Retail/Shop

To Let
£708 / month

Belper, DE56 1AY

Retail/Shop

To Let
£1250 / month

Nottingham, NG11 9FE

Retail/Shop

To Let
£792 / month

Belper, DE56 1AX

Retail/Shop

To Let
£792 / month

Belper, DE56 1AY

Retail/Shop

To Let
£1850 / month

Loughborough, LE11 5DF

Retail/Shop

To Let
£1999 / month

Loughborough, LE11 5DF

Retail/Shop

To Let
£650 / month

Belper, DE56 1BA

Retail/Shop

To Buy
£575000 Freehold

Belper, DE56 2UA

Retail/Shop

To Let
POA

Loughborough, LE11 1LE

Retail/Shop

To Let
£2250 / month

Market Harborough, LE67 2BT

Retail/Shop

To Let
£1646 / month

Loughborough, LE11 5BJ

Retail/Shop

To Let
£917 / month

Loughborough, LE11 1UA

Retail/Shop